Toilet Partition Spec Section . Dimensioned elevations indicating heights of doors,. section 10 21 13.17 phenolic core toilet compartments. Durable and strong enough for high traffic areas. Learn how to select the most appropriate toilet partition. model phenolic core partitions. Dimensioned plans indicating layout of toilet compartments. Resists water, oil and bacteria, even usable in shower stalls. Dimensioned plans indicating layout of toilet compartments. understand current toilet partition material fire code compliance. bradley mills stainless steel partitions provide a low maintenance, and durable solution for toilet rooms. bradley mills powder coated steel partitions provide an economical, durable, and colorful solution for toilet rooms. Dimensioned elevations indicating heights of doors,.
from www.partitionplus.com
Learn how to select the most appropriate toilet partition. Resists water, oil and bacteria, even usable in shower stalls. model phenolic core partitions. understand current toilet partition material fire code compliance. Dimensioned elevations indicating heights of doors,. Durable and strong enough for high traffic areas. bradley mills stainless steel partitions provide a low maintenance, and durable solution for toilet rooms. Dimensioned elevations indicating heights of doors,. Dimensioned plans indicating layout of toilet compartments. bradley mills powder coated steel partitions provide an economical, durable, and colorful solution for toilet rooms.
Partition Components 101 Bathroom Stall Parts Partition Plus
Toilet Partition Spec Section Dimensioned elevations indicating heights of doors,. Durable and strong enough for high traffic areas. Dimensioned elevations indicating heights of doors,. Dimensioned plans indicating layout of toilet compartments. bradley mills powder coated steel partitions provide an economical, durable, and colorful solution for toilet rooms. Dimensioned plans indicating layout of toilet compartments. understand current toilet partition material fire code compliance. bradley mills stainless steel partitions provide a low maintenance, and durable solution for toilet rooms. section 10 21 13.17 phenolic core toilet compartments. Learn how to select the most appropriate toilet partition. model phenolic core partitions. Dimensioned elevations indicating heights of doors,. Resists water, oil and bacteria, even usable in shower stalls.
From www.interloc-lockers.com.au
Interloc Toilet Partitions Shower & Toilet Partitions Toilet Partition Spec Section Resists water, oil and bacteria, even usable in shower stalls. Dimensioned plans indicating layout of toilet compartments. bradley mills stainless steel partitions provide a low maintenance, and durable solution for toilet rooms. bradley mills powder coated steel partitions provide an economical, durable, and colorful solution for toilet rooms. Dimensioned elevations indicating heights of doors,. understand current toilet. Toilet Partition Spec Section.
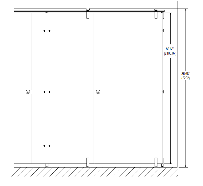
From www.pinterest.com
Specification Configurator Toilet Partitions Industries Wet area Toilet Partition Spec Section bradley mills stainless steel partitions provide a low maintenance, and durable solution for toilet rooms. Dimensioned elevations indicating heights of doors,. Durable and strong enough for high traffic areas. Dimensioned plans indicating layout of toilet compartments. section 10 21 13.17 phenolic core toilet compartments. bradley mills powder coated steel partitions provide an economical, durable, and colorful solution. Toilet Partition Spec Section.
From www.fastpartitions.com
Glass Toilet Partitions Bradley Lucent Series Fast Partitions Toilet Partition Spec Section section 10 21 13.17 phenolic core toilet compartments. Dimensioned plans indicating layout of toilet compartments. Dimensioned plans indicating layout of toilet compartments. bradley mills stainless steel partitions provide a low maintenance, and durable solution for toilet rooms. Dimensioned elevations indicating heights of doors,. bradley mills powder coated steel partitions provide an economical, durable, and colorful solution for. Toilet Partition Spec Section.
From www.greatfoldpartition.com
How high is the partition size of the floor mounted toilet partitions? Toilet Partition Spec Section Learn how to select the most appropriate toilet partition. understand current toilet partition material fire code compliance. Durable and strong enough for high traffic areas. Dimensioned elevations indicating heights of doors,. Dimensioned plans indicating layout of toilet compartments. Resists water, oil and bacteria, even usable in shower stalls. bradley mills stainless steel partitions provide a low maintenance, and. Toilet Partition Spec Section.
From www.partitionplus.com
How to Install Toilet Partitions Partition Plus Toilet Partition Spec Section Dimensioned plans indicating layout of toilet compartments. Dimensioned elevations indicating heights of doors,. understand current toilet partition material fire code compliance. Dimensioned elevations indicating heights of doors,. model phenolic core partitions. section 10 21 13.17 phenolic core toilet compartments. Resists water, oil and bacteria, even usable in shower stalls. bradley mills stainless steel partitions provide a. Toilet Partition Spec Section.
From mavink.com
Toilet Partition Height Toilet Partition Spec Section bradley mills stainless steel partitions provide a low maintenance, and durable solution for toilet rooms. section 10 21 13.17 phenolic core toilet compartments. Dimensioned elevations indicating heights of doors,. Dimensioned plans indicating layout of toilet compartments. Resists water, oil and bacteria, even usable in shower stalls. bradley mills powder coated steel partitions provide an economical, durable, and. Toilet Partition Spec Section.
From duracube.com.au
3000 Series Toilet & Shower Partitions Full Height Duracube Toilet Partition Spec Section bradley mills powder coated steel partitions provide an economical, durable, and colorful solution for toilet rooms. understand current toilet partition material fire code compliance. Learn how to select the most appropriate toilet partition. Durable and strong enough for high traffic areas. Dimensioned plans indicating layout of toilet compartments. section 10 21 13.17 phenolic core toilet compartments. . Toilet Partition Spec Section.
From mavink.com
Toilet Partition Details Toilet Partition Spec Section Durable and strong enough for high traffic areas. Learn how to select the most appropriate toilet partition. Dimensioned plans indicating layout of toilet compartments. model phenolic core partitions. Dimensioned elevations indicating heights of doors,. Resists water, oil and bacteria, even usable in shower stalls. Dimensioned plans indicating layout of toilet compartments. bradley mills stainless steel partitions provide a. Toilet Partition Spec Section.
From www.fastpartitions.com
Typical Toilet Partition Dimensions Bathroom Partitions & Commercial Toilet Partition Spec Section Dimensioned plans indicating layout of toilet compartments. Learn how to select the most appropriate toilet partition. bradley mills powder coated steel partitions provide an economical, durable, and colorful solution for toilet rooms. Durable and strong enough for high traffic areas. model phenolic core partitions. understand current toilet partition material fire code compliance. Resists water, oil and bacteria,. Toilet Partition Spec Section.
From interloc-lockers.com.au
Interloc Toilet Partitions Shower & Toilet Partitions Toilet Partition Spec Section bradley mills powder coated steel partitions provide an economical, durable, and colorful solution for toilet rooms. section 10 21 13.17 phenolic core toilet compartments. Dimensioned elevations indicating heights of doors,. Dimensioned elevations indicating heights of doors,. Durable and strong enough for high traffic areas. Dimensioned plans indicating layout of toilet compartments. model phenolic core partitions. bradley. Toilet Partition Spec Section.
From www.generalpartitions.com
Toilet Partitions General Partitions Toilet Partition Spec Section Resists water, oil and bacteria, even usable in shower stalls. section 10 21 13.17 phenolic core toilet compartments. Dimensioned elevations indicating heights of doors,. Dimensioned elevations indicating heights of doors,. Learn how to select the most appropriate toilet partition. Durable and strong enough for high traffic areas. Dimensioned plans indicating layout of toilet compartments. Dimensioned plans indicating layout of. Toilet Partition Spec Section.
From tpi.net.au
Specification Configurator Toilet Partitions Industries Wet area Toilet Partition Spec Section Durable and strong enough for high traffic areas. bradley mills powder coated steel partitions provide an economical, durable, and colorful solution for toilet rooms. Dimensioned elevations indicating heights of doors,. understand current toilet partition material fire code compliance. Dimensioned elevations indicating heights of doors,. Resists water, oil and bacteria, even usable in shower stalls. model phenolic core. Toilet Partition Spec Section.
From www.scribd.com
Toilet Partition Catalog PDF Door Specification (Technical Standard) Toilet Partition Spec Section model phenolic core partitions. Dimensioned plans indicating layout of toilet compartments. Resists water, oil and bacteria, even usable in shower stalls. section 10 21 13.17 phenolic core toilet compartments. bradley mills stainless steel partitions provide a low maintenance, and durable solution for toilet rooms. Dimensioned elevations indicating heights of doors,. understand current toilet partition material fire. Toilet Partition Spec Section.
From tpi.net.au
Specification Configurator Toilet Partitions Industries Wet area Toilet Partition Spec Section model phenolic core partitions. Learn how to select the most appropriate toilet partition. Resists water, oil and bacteria, even usable in shower stalls. Dimensioned elevations indicating heights of doors,. Dimensioned elevations indicating heights of doors,. bradley mills powder coated steel partitions provide an economical, durable, and colorful solution for toilet rooms. Durable and strong enough for high traffic. Toilet Partition Spec Section.
From tpi.net.au
Specification Configurator Toilet Partitions Industries Wet area Toilet Partition Spec Section understand current toilet partition material fire code compliance. Resists water, oil and bacteria, even usable in shower stalls. Dimensioned plans indicating layout of toilet compartments. Dimensioned plans indicating layout of toilet compartments. Durable and strong enough for high traffic areas. model phenolic core partitions. section 10 21 13.17 phenolic core toilet compartments. bradley mills stainless steel. Toilet Partition Spec Section.
From www.jialifucubicle.com
Toilet Cubicle Size for Regular MultiStall Restroom Toilet Partition Spec Section Dimensioned plans indicating layout of toilet compartments. Dimensioned plans indicating layout of toilet compartments. Durable and strong enough for high traffic areas. understand current toilet partition material fire code compliance. bradley mills stainless steel partitions provide a low maintenance, and durable solution for toilet rooms. Dimensioned elevations indicating heights of doors,. Learn how to select the most appropriate. Toilet Partition Spec Section.
From cadbull.com
Architectural Toilet Plan DWG File Cadbull Toilet Partition Spec Section Learn how to select the most appropriate toilet partition. bradley mills powder coated steel partitions provide an economical, durable, and colorful solution for toilet rooms. Resists water, oil and bacteria, even usable in shower stalls. Dimensioned plans indicating layout of toilet compartments. understand current toilet partition material fire code compliance. section 10 21 13.17 phenolic core toilet. Toilet Partition Spec Section.
From www.spec-net.com.au
Toilet Cubicle Partitions Laminate Board by Flush Partitions Toilet Partition Spec Section bradley mills powder coated steel partitions provide an economical, durable, and colorful solution for toilet rooms. understand current toilet partition material fire code compliance. Dimensioned plans indicating layout of toilet compartments. Dimensioned plans indicating layout of toilet compartments. Dimensioned elevations indicating heights of doors,. Durable and strong enough for high traffic areas. section 10 21 13.17 phenolic. Toilet Partition Spec Section.